터뜨리움 > 건축전

본문 바로가기
건축학과 홈 ▶

건축전

2025년 4학년 건축설계 1학기

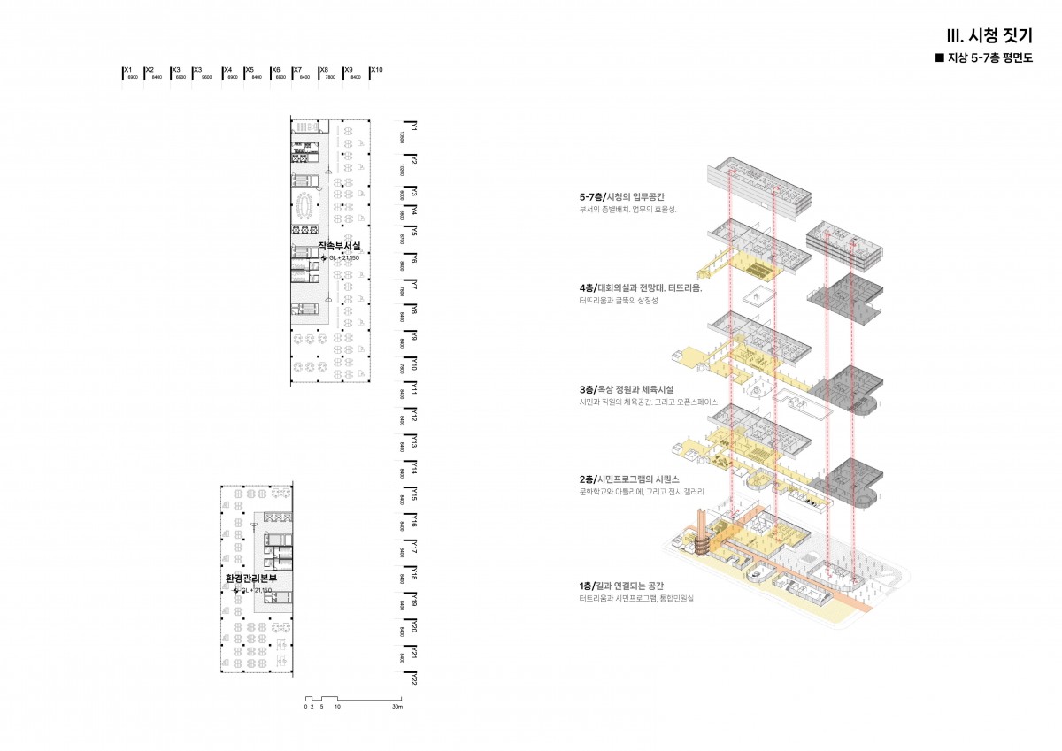
[ 터뜨리움 ] 청주의 도시기억방법과 터의 장소성

본문

profile_image

페이지 정보

민성재

da5652ccae4b4d3478de932f4e21350d_1751287500_4899.jpg
da5652ccae4b4d3478de932f4e21350d_1751287397_1594.jpg
da5652ccae4b4d3478de932f4e21350d_1751287397_6879.jpg
da5652ccae4b4d3478de932f4e21350d_1751287398_4245.jpg
da5652ccae4b4d3478de932f4e21350d_1751287399_0953.jpg
da5652ccae4b4d3478de932f4e21350d_1751287399_7189.jpg
da5652ccae4b4d3478de932f4e21350d_1751287400_2407.jpg
da5652ccae4b4d3478de932f4e21350d_1751287401_2126.jpg
da5652ccae4b4d3478de932f4e21350d_1751287402_2963.jpg
da5652ccae4b4d3478de932f4e21350d_1751287403_0207.jpg
da5652ccae4b4d3478de932f4e21350d_1751287403_5716.jpg
.

사이트 정보

(우)28644 충북 청주시 서원구 충대로 1(개신동) 충북대학교 공과대학 건축학과
Tel : 043-261-3247 Fax : 043-263-2634

Copyright ⓒ Department of Architecture Chungbuk National University all rights reserved.