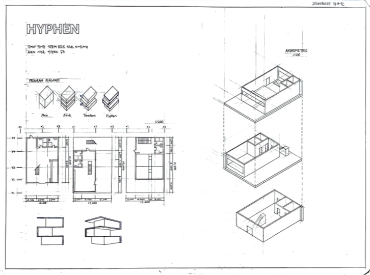
HYPHEN > 건축전

본문 바로가기
건축학과 홈 ▶

건축전

2024년 1학년 초급설계 1학기

[ HYPHEN ]

본문

profile_image

페이지 정보

장아란 건축학과
939c5b27b85c11103f2e65f1f3f8250b_1718732424_5019.png
939c5b27b85c11103f2e65f1f3f8250b_1718732426_5138.png
939c5b27b85c11103f2e65f1f3f8250b_1718732429_4223.png

사이트 정보

(우)28644 충북 청주시 서원구 충대로 1(개신동) 충북대학교 공과대학 건축학과
Tel : 043-261-3247 Fax : 043-263-2634

Copyright ⓒ Department of Architecture Chungbuk National University all rights reserved.