쉼표 > 건축전

본문 바로가기
건축학과 홈 ▶

건축전

2024년 1학년 초급설계 1학기

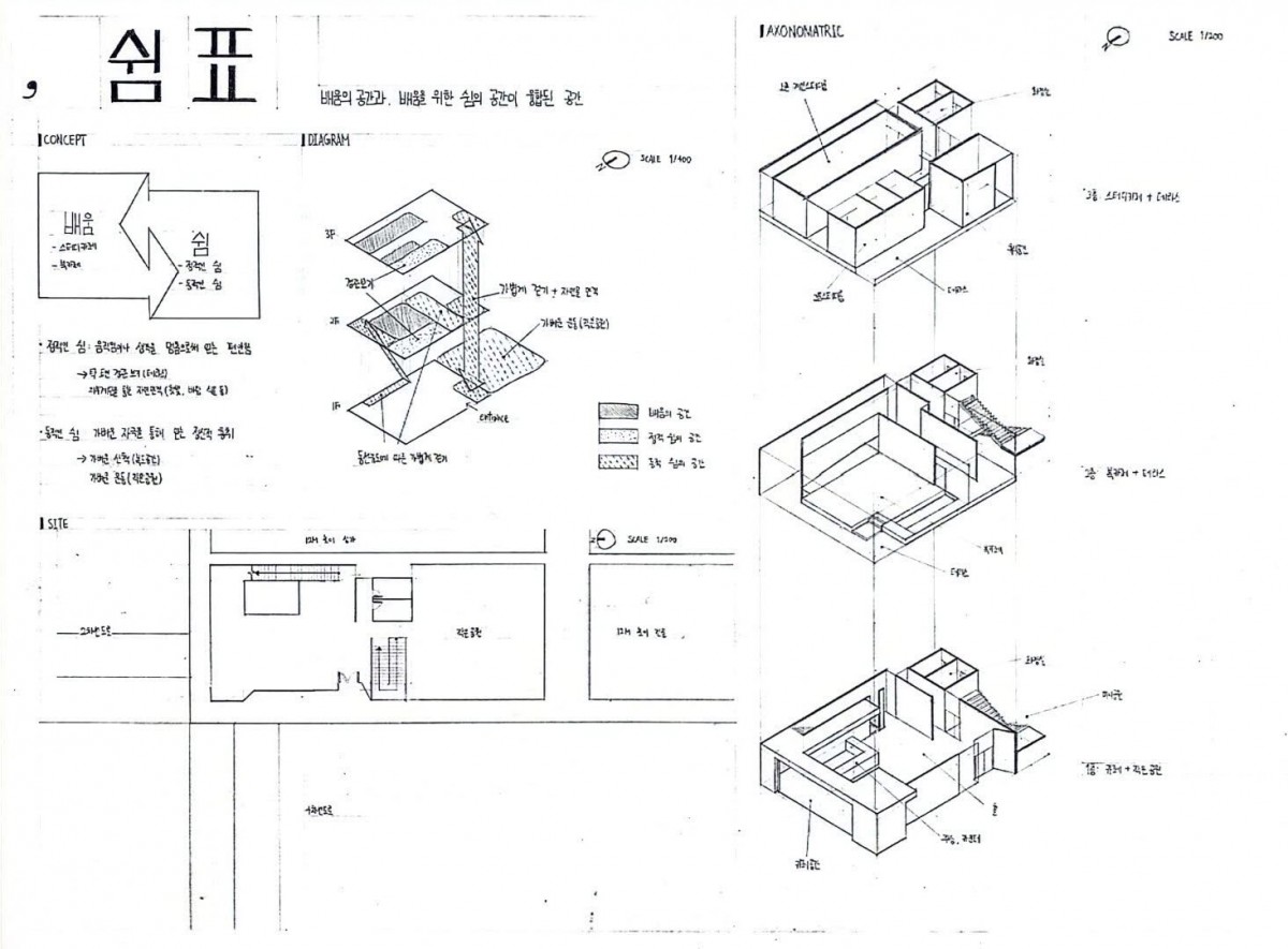
[ 쉼표 ]

본문

profile_image

페이지 정보

손예성 건축학 전공

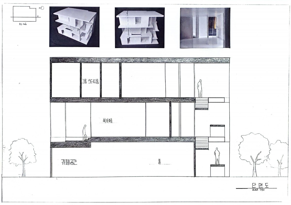
1e4743d39becc8776afb226e107600b0_1718764868_7797.jpg
1e4743d39becc8776afb226e107600b0_1718764868_8535.jpg
1e4743d39becc8776afb226e107600b0_1718764867_1734.jpg
1e4743d39becc8776afb226e107600b0_1718764867_6279.jpg
1e4743d39becc8776afb226e107600b0_1718764868_5095.jpg
1e4743d39becc8776afb226e107600b0_1718764868_0246.jpg
 

사이트 정보

(우)28644 충북 청주시 서원구 충대로 1(개신동) 충북대학교 공과대학 건축학과
Tel : 043-261-3247 Fax : 043-263-2634

Copyright ⓒ Department of Architecture Chungbuk National University all rights reserved.