LAST(라스트) > 건축전

본문 바로가기
건축학과 홈 ▶

건축전

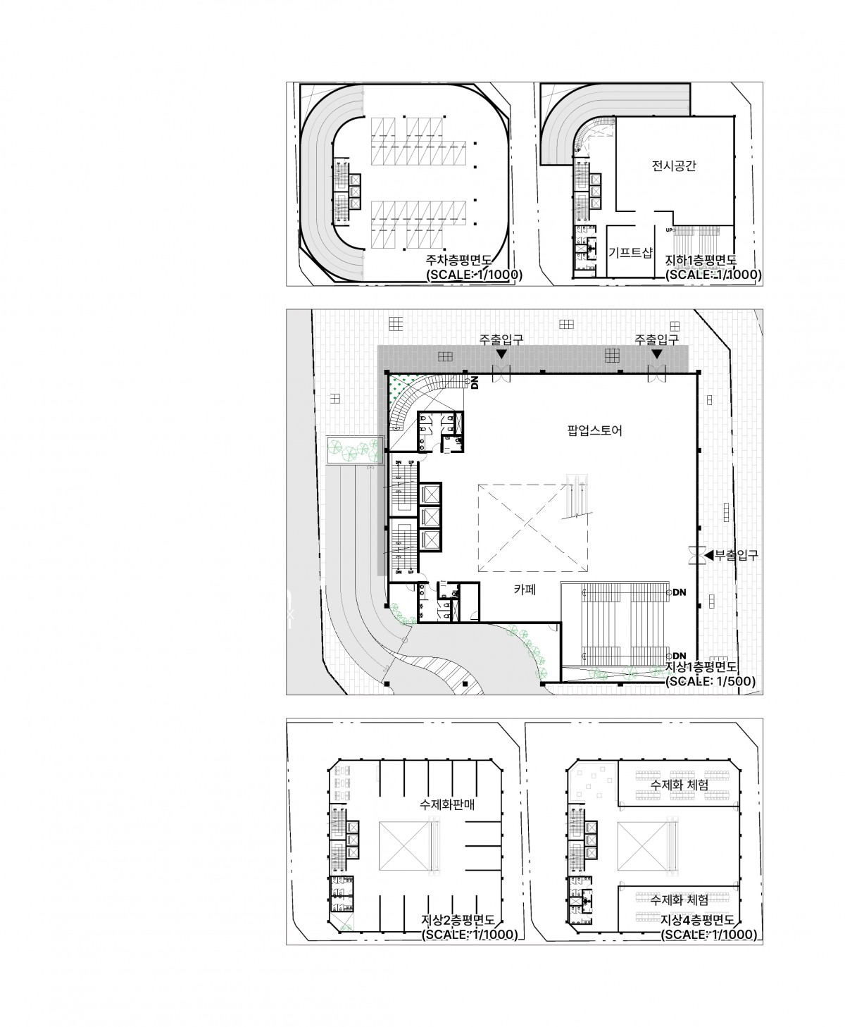
2024년 5학년 건축설계 1학기

[ LAST(라스트) ] 수제화 산업의 부흥

본문

profile_image

페이지 정보

윤은지

4c08debbade736f3d97b8d3bf3620f52_1718779379_0189.jpg
4c08debbade736f3d97b8d3bf3620f52_1718779379_2706.jpg
4c08debbade736f3d97b8d3bf3620f52_1718779379_4674.jpg
4c08debbade736f3d97b8d3bf3620f52_1718779379_7178.jpg
4c08debbade736f3d97b8d3bf3620f52_1718779380_0057.jpg
4c08debbade736f3d97b8d3bf3620f52_1718779380_2886.jpg
 

사이트 정보

(우)28644 충북 청주시 서원구 충대로 1(개신동) 충북대학교 공과대학 건축학과
Tel : 043-261-3247 Fax : 043-263-2634

Copyright ⓒ Department of Architecture Chungbuk National University all rights reserved.