보행거점 : 교차로에서 순환로터리로 > 건축전

본문 바로가기
건축학과 홈 ▶

건축전

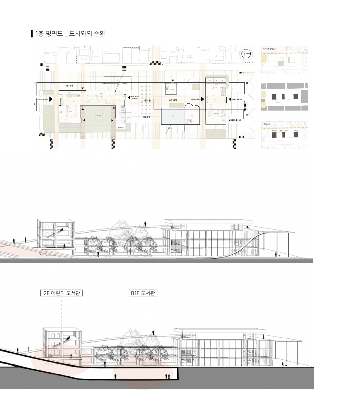
2024년 4학년 건축설계 1학기

[ 보행거점 : 교차로에서 순환로터리로 ]

본문

profile_image

페이지 정보

이현지

a291b42a781727ec67684abd9818b490_1721309046_7831.png
a291b42a781727ec67684abd9818b490_1721309050_7968.png
a291b42a781727ec67684abd9818b490_1721309052_8511.png
a291b42a781727ec67684abd9818b490_1721309054_4714.png
d16a68fcf47df40341bd2593716502c5_1721308378_6242.jpeg 

사이트 정보

(우)28644 충북 청주시 서원구 충대로 1(개신동) 충북대학교 공과대학 건축학과
Tel : 043-261-3247 Fax : 043-263-2634

Copyright ⓒ Department of Architecture Chungbuk National University all rights reserved.