NOMIIN URGOO > 건축전

본문 바로가기
건축학과 홈 ▶

건축전

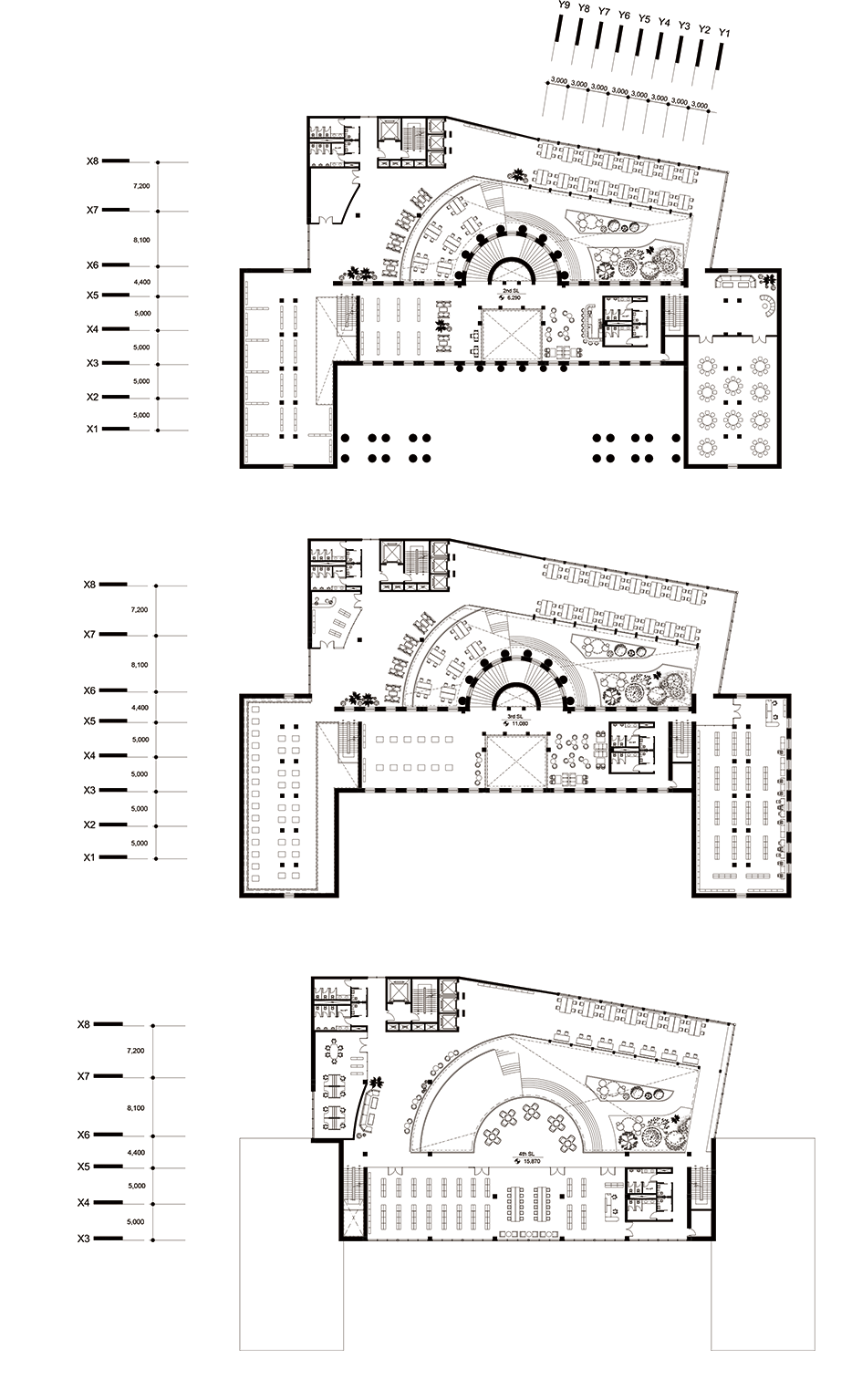
2024년 5학년 건축설계 1학기

[ NOMIIN URGOO ] 몽골 국립중앙도서관

본문

profile_image

페이지 정보

ZUCHI

ab6369fed7162074a5447f855f261945_1722944022_8785.jpg
ab6369fed7162074a5447f855f261945_1722944027_3658.png
ab6369fed7162074a5447f855f261945_1722944030_0951.png
ab6369fed7162074a5447f855f261945_1722944031_9663.png
ab6369fed7162074a5447f855f261945_1722944036_9993.png
ab6369fed7162074a5447f855f261945_1722944039_598.png
ab6369fed7162074a5447f855f261945_1722944044_296.png
ab6369fed7162074a5447f855f261945_1722944046_5267.png
ab6369fed7162074a5447f855f261945_1722944049_7132.png
ab6369fed7162074a5447f855f261945_1722944055_2066.png


 

사이트 정보

(우)28644 충북 청주시 서원구 충대로 1(개신동) 충북대학교 공과대학 건축학과
Tel : 043-261-3247 Fax : 043-263-2634

Copyright ⓒ Department of Architecture Chungbuk National University all rights reserved.