Con:Tempor:ary > 건축전

본문 바로가기
건축학과 홈 ▶

건축전

2025년 4학년 건축설계 1학기

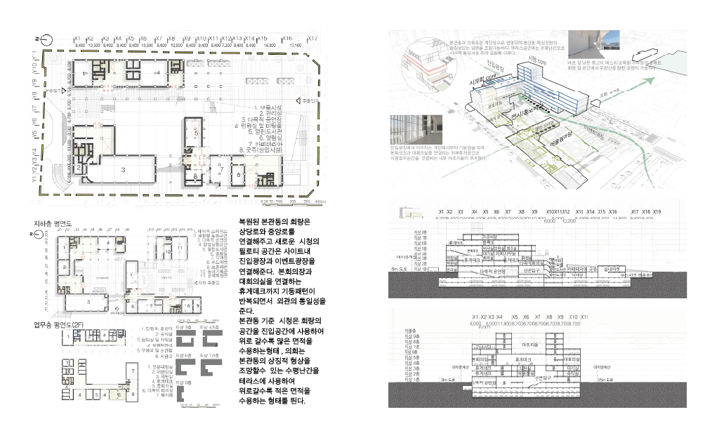
[ Con:Tempor:ary ] 시대와 다양한 속도가 공존하는 청주시청

본문

profile_image

페이지 정보

오선민

555af845b325851f5ecbdd7907fd2736_1750406556_1216.png
555af845b325851f5ecbdd7907fd2736_1750406558_4061.png

 

사이트 정보

(우)28644 충북 청주시 서원구 충대로 1(개신동) 충북대학교 공과대학 건축학과
Tel : 043-261-3247 Fax : 043-263-2634

Copyright ⓒ Department of Architecture Chungbuk National University all rights reserved.